12clés pour inventer le projet métropolitain du Grand Paris - AIGP
Atelier International du Grand Paris rechercher
Cacher le contenu pour mieux voir les images
afficher le contenu
Construire le Grand Paris - 2012

Construire
le Grand Paris

Quatre principes fondamentaux

Inventer de nouvelles typologies

Exemple d'ilot ouvert.  © Atelier Christian de PortzamparcAfin de répondre aux changements sociaux-démographiques de taille des ménages, de décohabitation, de pénuries de logements étudiants, il faut inventer de nouvelles typologies, à la fois en termes de lieux de vie, de lieux de travail et d’espaces urbains.

«L’îlot ouvert est une manière de bâtir entre les rues en donnant à plusieurs programmes leur autonomie, leurs «jours», leurs adresses, sans les accoler au mitoyen. Les bâtiments ne sont pas mitoyens, ils sont donc autonomes.»
Atelier Christian de Portzamparc

> télécharger le document complet

Utiliser le foncier disponible

"dross" francilienLa nécessité de pourvoir la métropole de 70 000 nouveaux logements par ans, associée à la volonté actuelle de limitation de l’étalement urbain et d’intensification, implique de trouver des sources de foncier autre que les espaces agricoles en périphérie de l’espace bâti. Cette source de foncier, plus difficile à mobiliser est présente au sein de la ville actuelle et peut prendre différentes formes.

Une cartographie des lieux qui à l’échéance des décennies future pourraient être réinterprétés et réutilisés permet de répertorier les zones qui sont sous-utilisés et donc potentiellement porteuses de développement, notamment de l’habitat.
Bernardo Secchi et Paola Viganò / Studio 11

> télécharger le document complet

Favoriser la mixité et la proximité

Articulation entre les différents tissus urbains. © JEAN NOUVEL [AJN] , JEAN-MARIE DUTHILLEUL [AREP], MICHEL CANTAL DUPART [ACD]La mixité, qu’elle soit sociale ou fonctionnelle, est assurément un élément clé permettant de rassembler les personnes, les emplois, les cultures. Les juxtapositions sont génératrices de synergies. La mixité fonctionnelle permet également de répondre aux enjeux environnementaux en réduisant les déplacements. La mixité sociale favorise l’intégration et l’égalité.

« Modifier la forme d’un appartement, faire évoluer la structure d’un
immeuble, voir d’un ensemble de constructions, c’est prendre en compte la
flexibilité qui caractérise la vie actuelle. »

Jean-Nouvel [AJN], Jean-Marie Duthilleul [AREP], Michel Cantal- Dupart [ACD]

> télécharger le document complet

Lier densité, intensité et diffus

Microcentralités dans la ville diffuse. © FINN GEIPEL ET GIULIA ANDI + SYSTEMATICA / LINLes réserves de fonciers n’étant pas infinies, l’étalement urbain semble inévitable à très long terme. Le rapport entre ville diffuse, ville dense et ville intense représente à ce titre un enjeu majeur pour la ville du futur. La demande pour des espaces de faible densité reste très élevée. Le pavillonnaire peut être bien vécu et son fonctionnement optimisé. Il faudra pour cela l’intégrer dans une vision d’ensemble. L’intensité urbaine est également à rechercher, mais elle doit être associée à des espaces ouvert de nature et de respiration. C’est de l’équilibre entre ces aspects que naîtra la ville durable.

«Des centres historiques, lieux de patrimoine exceptionnel, campus de recherche et d’expérimentation, pôles de production ou de grandes plateformes de mobilité constituent autant de germes pour développer des polarités solides. Ces pôles intenses, d’une densité urbaine élevée, seront très économes en consommation d’énergie. Lieux d’échange et de connectivité, de mixité aussi, ils présentent également une large offre culturelle et de service. Ils formeront ainsi des repères durables dns les paysages changeants de la métropole future.
Finn Geipel + Giulia Andi / LIN

> télécharger le document complet

> télécharger Les annexes présentant des références Internationales et Six questions sur le logement en Île-de-France

13 pistes pour construire la ville sur la ville

Densifier les zones pavillonnaires

Principe de densification du pavillonaire. © Jean-Nouvel [AJN], Jean-Marie Duthilleul [AREP], Michel Cantal-Dupart [ACD]Les quartiers pavillonnaires constituent un enjeu important : leur faible densité favorise les déplacements et la consommation de foncier. Leur densification permettrait de réaliser une partie des 70 000 nouveaux logements préconisés dans le Grand Paris.
Exemple de densification du pavillonairePrincipe de densification du pavillonaire

> télécharger le document complet

Densifier les zones d’activités

Exemples de mixité en zones d'activité. © Jean-Nouvel [AJN], Jean-Marie Duthilleul [AREP], Michel Cantal-Dupart [ACD] Localisation des zones d’activités. © Equipe Bernardo Secchi et Paola Vigano / Studio 11L’Île-de-France accueille 1200 parcs et zones d’activités économiques occupant 23 000 hectares soit près de 20% de la superficie totale du territoire. L’urbanisation des zones permettrait la création de nombreux logements. Leur requalification participerait au renouvellement urbain ainsi qu’au renforcement de la mixité fonctionnelle.

> télécharger le document complet

Construire le long des infrastructures de transport

Aménagement des abords d’un axe ferré. © Equipe Richard Rogers - Rogers Stirk Harbour + Partners, LES, ARUPDu fait de «l’amendement Dupont», la construction en dehors des zones urbanisées et autour des voies de grande circulation (autoroutes et nationales) est interdite. La réappropriation de ces espaces permettrait de construire de nombreux logements et de recréer des continuités urbaines.
Exemple d'urbanisation sur les abords de la RN7 Exemple d'urbanisation sur les abords de la RN7 après.

> télécharger le document complet

Requalier les grands ensembles

Localisation des principaux grands ensembles © Equipe Roland Castro / Atelier Castro-Denissof-CasiSouvent stigmatisés, les grands ensembles pourraient bénéficier de restructurations permettant de les réinsérer dans le tissu urbain et de les inscrire dans une dynamique de valorisation de ses habitants.

Exemple de réaménagement du quartier des 4000, La courneuve«Il faut arrêter la démolition/reconstruction et passer à une généralisation de modication de l’existant par addition, extension, dilatation. Le but est de tendre vers un confort accru avec plus d’espace, notamment extérieur.»
Jean Nouvel (AJN), Jean-Marie Duthilleul (AREP), Michel Cantal Dupart (ACD)

«Le droit à l’urbanité englobe un bon logement, un plaisir d’habiter, une reconnaissance de son immeuble, le sentiment d’un quartier qui renvoie une image de citoyen…»
Roland Castro / Atelier Castro-Denissof-Casi

«Les constructions neuves et les restructurations de logements existants permettent de produire une ore typologique importante, très diversiée et en accord avec les modes de vie actuels de la société.»
Djamel Klouche / L’AUC

> télécharger le document complet

Construire sur les toits

Exemple d’aménagement des toits parisiens. © Equipe Richard Rogers - Rogers Stirk Harbour + Partners, LES, ARUPDepuis longtemps, la surélévation est utilisée pour densifier les villes. Le recours à ce procédé est envisageable, tant dans la zone centre qu’en périphérie.

Réhaussement de l’haussmannien. © Equipe Winy Maas / MVRDV avec ACS et AAF

> télécharger le document complet

Urbaniser les parkings des centres commerciaux

Etant donné les évolutions dans les modes de transport, ainsi que le retour aux commerces de proximité, il est possible d’anticiper une baisse de la fréquentation des parkings de centres commerciaux. Ces espaces pourraient être reconvertis et aménagés pour répondre en partie aux objectifs de construction de logements nouveaux.
Utilisation des parkings lors du réaménagement d’un boulevard. Avant. © Yves Lion - Groupe Descartes Utilisation des parkings lors du réaménagement d’un boulevard. Après. © Yves Lion - Groupe Descartes

> télécharger le document complet

Libérer les règles

La nécessité de créer près de 70 000 logements par an sur le territoire métropolitain remet en question certaines caractéristiques des documents d’urbanisme actuels. Libérer les règles permettrait de débloquer des situations.

«Inventer un urbanisme qui encadre, rend possible, établit des règles du jeu, est la réponse. Un urbanisme qui incite à la qualité en ouvrant des droits de retour.»
Atelier Christian de Portzamparc
Extension du pavillonnaire favorisée par l’allègement des règles. Avant. © Yves Lion - Groupe Descartes Extension du pavillonnaire favorisée par l’allègement des règles. Après. © Yves Lion - Groupe Descartes

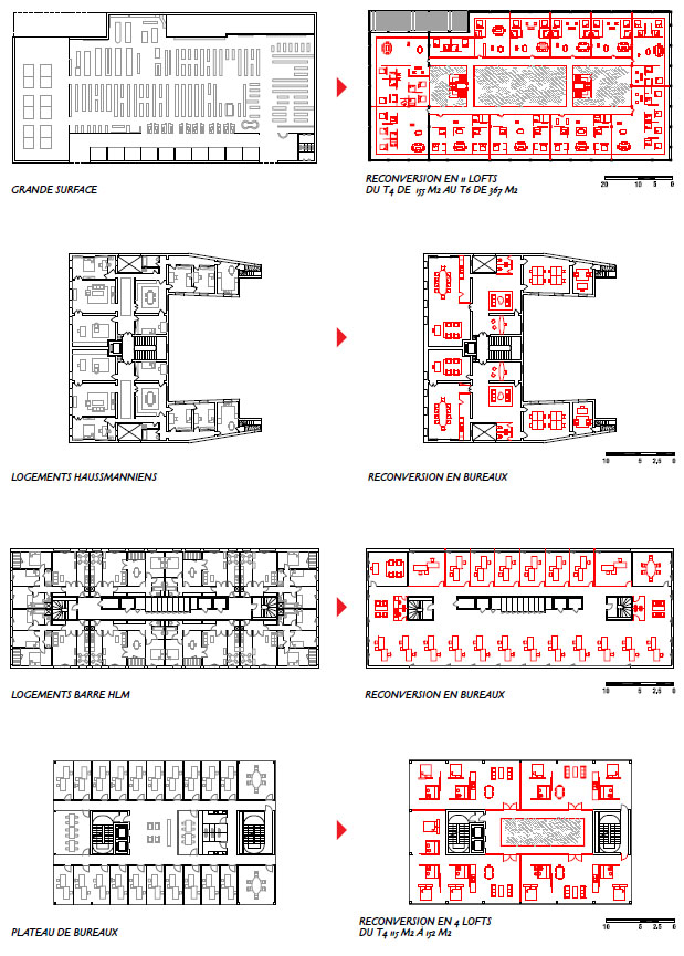
Transformer l’existant

Transformation type d’un étage d’immeuble. © Jean-Nouvel [AJN], Jean-Marie Duthilleul [AREP], Michel Cantal-Dupart [ACD]Réaménagement des surfaces. © Jean-Nouvel [AJN], Jean-Marie Duthilleul [AREP], Michel Cantal-Dupart [ACD]«Afinn de sortir certaines familles des logements insalubres il faut construire des produits moins coûteux, peut être plus petits que nécessaires mais qui peuvent être construits rapidement pour répondre aux situations d’indigence de certains ménages.»
Yves Lion / Groupe Descartes

«Modier la forme d’un appartement, faire évoluer la structure d’un immeuble, voire d’un ensemble de constructions, c’est prendre en compte la exibilité qui caractérise la vie actuelle.»
Jean Nouvel (AJN), Jean-Marie Duthilleul (AREP),

Urbaniser les zones inondables

Localisation du bâti inondable. © Equipe Bernardo Secchi et Paola Vigano / Studio 11

Habitaion sur l'eau. © Equipe Winy Maas / MVRDV avec ACS et AAF
Adaptation aux inondations. © Equipe Bernardo Secchi et Paola Vigano / Studio 11

Les territoires gelés en prévention des risques d’inondation représentent une opportunité intéressante de création de foncier si elle est associée à une analyse globale de la vulnérabilité ainsi qu’à une préparation des populations à la vie en zone inondable. Il faut notamment étudier les phénomènes d’inondations et de crues à l’échelle métropolitaine pour organiser une gestion globale.

> télécharger le document complet

Intensier les lisières

Schéma d’aménagement d’une lisière. © Jean-Nouvel [AJN], Jean-Marie Duthilleul [AREP], Michel Cantal-Dupart [ACD]Identification des lisières. © Jean-Nouvel [AJN], Jean-Marie Duthilleul [AREP], Michel Cantal-Dupart [ACD]Les lisières forment une séparation entre deux mondes qui ne se rencontrent pas. D’un côté le monde agricole, de l’autre la périphérie de la périphérie qui prend parfois la forme d’une zone pavillonnaire, d’une zone commerciale ou d’une zone d’activités. Il n’y a aucune interaction entre ces deux espaces qui se tournent le dos. La lisière ne se matérialise que par une limite qui n’autorise aucun échange, aucun lien.

> télécharger le document complet

Requalication de l’échangeur Masséna. © Yves Lion - Groupe DescartesRequalier les échangeurs

Les échangeurs routiers sont fortement consommateurs d’espaces. En Ile-de-France, un échangeur consomme en moyenne 20 hectares de foncier, parfois en plein coeur de l’espace urbain. Leur redonner une place dans la ville permet non seulement de dégager de grandes quantités de foncier mais également de retrouver des liens urbains aujourd’hui perdus.

> télécharger le document complet

Construire des «hauts lieux»

Requalication de l’échangeur Masséna. © Yves Lion - Groupe DescartesCertains sites se distinguent de par leur charge poétique et leur histoire. Cette situation est une opportunité pour créer des centres de vie intense, forts d’une densité importante, et d’espaces ouverts agréables. Plusieurs « hauts lieux » mis en réseaux créeraient ainsi une ossature pour la métropole.

«Ces villes doivent être pensées avec des formes neuves, innovantes, en adéquation avec les sites qu’elles entourent. Les «hauts lieux» sont créés par ce mix entre géographie, histoire, hauteurs, pratiques et plaisirs, esthétiques et énergies de renouvellement.»
Jean Nouvel (AJN), Jean-Marie Duthilleul (AREP), Michel Cantal Dupart (ACD)

> télécharger le document complet

Construire autour des grands parcs

Densifier autour des parcs, exemple du parc de La Courneuve. © Yves Lion - Groupe DescartesLa métropole parisienne habrite de nombreux parc, de diverses tailles, qui fournissent aux habitants des lieux de détente, de loisirs et de respiration. Au coeur de Paris, les parcs, habilements intégrés au tissu très dense, permettent de vivre la densité de façon sereine en offrant un espace de nature et de repos. Ils sont, à ce titre, des éléments clés pour l’acceptation de la densité urbaine. Urbaniser leurs alentours, en périphérie, permettrait de créer des espaces de forte densité, et de répondre ainsi aux objectifs de construction de logement tout en créant une qualité de vie exceptionnelle.

Pour poursuivre la réflexion, consultez notre dossier :

→ SIX QUESTIONS SUR LE LOGEMENT EN ÎLE-DE-FRANCE